Copper Vista Commercial Project

  • Project Type: Commercial Project
  • LOCATION:SM Street, Calicut
  • UNITS: 50000 SQ.FT
  • STATUS: Ongoing Project

Work. Life. Balanced.

Expect Greatness.

Copper Vista - a collection of commercial spaces where sunlight streams through vast windows, infusing the space with dynamic energy. Stroll home through the prized pockets of Calicut’s Palayam Road, SM street. Where you are surrounded by the hustle and bustle of a vibrant city life. A place where business thrives.

Stop planning, Start Thriving.

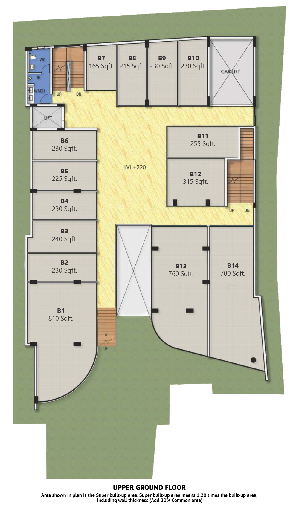
Meticulously crafted both in and out, these spaces in 6 floors, built in 50,000sqft area will deliver unparalleled shopping experience to a convenient, culturally rich location.

Great Businesses are built on strong foundation.

There's a business space, and there's space that maximises the potential of your business. Get the advantage of city life, the connectivity, the access, the possibilities...the options are endless.